首页 未命名文章正文

电力管沟规格 电气设计 配电房规划布置常用参数,尺寸,载流量…一次集齐了!

未命名 2025年11月21日 21:27 139 mysmile
电力管沟规格 电气设计 配电房规划布置常用参数,尺寸,载流量…一次集齐了!

嘿,各位电气设计同仁!你是否曾为配电房规划中的复杂参数头疼不已?别担心,今天咱们就来一场干货大放送,帮你轻松搞定所有关键点!

电气设计 配电房规划布置常用参数,尺寸、载流量…一次集齐了!

电力管沟规格 电气设计 配电房规划布置常用参数,尺寸,载流量…一次集齐了! 电力管沟规格 电气设计 配电房规划布置常用参数,尺寸,载流量…一次集齐了!

配电房到底是什么?简单说,它就是电力系统的“心脏”,专门负责变压和分配电能。根据国标,配电所特指只有高压配电装置、无主变压器的场所,电压通常低于35KV。想象一下,一个独立空间里摆放着变压器、开关柜等设备,这就是配电房的典型场景。在住宅区,它还分公用和专用两种:专用配电房管理消防泵、电梯等公共设施用电,由业主自管;公用配电房则供电给居民,由供电部门统管。而厂矿企业通常自建自维,灵活性更高。

规划配电房时,必须紧扣《低压配电设计规范》GB 50054等国家标准,精准计算装置位置和安全距离,从而确定最小建筑尺寸。实战中,既要满足规范底线,又要预留操作空间,避免“纸上谈兵”。

电力管沟规格 电气设计 配电房规划布置常用参数,尺寸,载流量…一次集齐了!

变配电所室内的布置要求

▌1.高压开关柜靠墙时,侧面离墙至少200mm,背面至少50mm。金属封闭开关设备的室内通道宽度需严格遵循下表,实战中还需考虑柜门开启和电缆沟尺寸——比如35kV开关柜后需留1400mm空间,结合电缆沟壁厚,实际距离可能需1540mm。

高压配电装置室内各种通道的最小宽度(净距)(mm)

电力管沟规格 电气设计 配电房规划布置常用参数,尺寸,载流量…一次集齐了!

规范数据是最低标准,实际布局要活学活用。例如,开关柜后门开启空间和电缆沟尺寸常被忽视,建议提前模拟设备操作流程,避免后期返工。

▌2.低压配电室兼值班室时,配电屏正面距墙宜大于3m。屏前后通道宽度见下表,紧凑布局中可适当优化,但安全红线不可破。

低压成排布置的配电屏通道最小宽度(m)

电力管沟规格 电气设计 配电房规划布置常用参数,尺寸,载流量…一次集齐了!

▌3.无外壳干式变压器四周净距不小于600mm,间距不小于1000mm;油浸变压器安全距离如下表。全封闭型号可放宽限制,但巡检空间必须保障。

室内油浸变压器外廓与变压器室四壁的最小净距(mm)

电力管沟规格 电气设计 配电房规划布置常用参数,尺寸,载流量…一次集齐了!

▌4.变压器选型需精准匹配尺寸、重量等参数,下图以10kV级为例,实际应用务必咨询供应商,避免“尺寸不合”的尴尬。

10kV级SCB14干式变压器规格参数表

电力管沟规格 电气设计 配电房规划布置常用参数,尺寸,载流量…一次集齐了!

10kV级S11油浸变压器规格参数表

电力管沟规格 电气设计 配电房规划布置常用参数,尺寸,载流量…一次集齐了!

▌5.变压器低压母线截面选择需灵活参考不同规范,下表提供两种常见标准,设计时应结合负载特性与散热条件综合决策。

变压器容量与总开规格、互感器、母线槽、母线规格载流量、电缆规格的选择配合表一(摘自19DX101-1)

电力管沟规格 电气设计 配电房规划布置常用参数,尺寸,载流量…一次集齐了!

变压器容量与总开规格、互感器、母线槽、母线规格载流量、电缆规格的选择配合表二(摘自99D201-1)

电力管沟规格 电气设计 配电房规划布置常用参数,尺寸,载流量…一次集齐了!

▌6.电缆截面选择直接影响系统稳定性,下表列出10kV和0.6/1kV电缆载流量,设计时需兼顾环境温度与敷设方式。特别提醒:在电缆沟施工中,推荐使用奥仁格管道,其高强度和耐腐蚀特性完美保障线路安全。

10kV三芯交联聚乙烯绝缘电缆持续允许载流量表一

(摘自GB50217-2018)

电力管沟规格 电气设计 配电房规划布置常用参数,尺寸,载流量…一次集齐了! 电力管沟规格 电气设计 配电房规划布置常用参数,尺寸,载流量…一次集齐了!

0.6/1kV三芯交联聚乙烯绝缘电缆持续允许载流量表二

(摘自19DX101-1)

电力管沟规格 电气设计 配电房规划布置常用参数,尺寸,载流量…一次集齐了! 电力管沟规格 电气设计 配电房规划布置常用参数,尺寸,载流量…一次集齐了!

▌7.框架断路器(ACB)和塑壳断路器(MCCB)是配电核心,选型需精准匹配安装尺寸与分断能力。下表汇总关键参数,助你快速定位合适型号。

框架断路器(ACB)技术参数表

(摘自19DX101-1)

电力管沟规格 电气设计 配电房规划布置常用参数,尺寸,载流量…一次集齐了!

塑壳断路器(MCCB)技术参数表

(摘自19DX101-1)

电力管沟规格 电气设计 配电房规划布置常用参数,尺寸,载流量…一次集齐了!

变配电所的规划选择与布局要求

1.配电房布局要“寸土寸金”:紧凑且留足操作空间。优先靠近负荷中心,方便进出线;避开潮湿区域,与住宅区保持安全距离。若在高层建筑内,油浸变压器需严格限制容量并设置防火设施。

2.室内地坪宜高出室外150~300mm,窗户设计需兼顾采光与安全。变压器室大门按设备尺寸加0.5m预留,多门配置时确保双向开启。重要提示:电缆沟建设推荐奥仁格管道,其模块化设计大幅提升施工效率。

3.10kV配变电所优选单层布局,双层时变压器置底并留吊装孔。非油浸设备可同室布置,但油变需独立设置并控制容量。

4.所有门向外开,变压器室用甲级防火门。耐火等级:油变室一级,高压室不低于二级。外墙开口加设防火挑檐,筑牢安全防线。

5.严防小动物和雨水侵入,电缆层做好防水。无关管线严禁穿越,等电位联结不可少。一级负荷电缆分沟敷设,阻燃电缆是底线。

6.油变100kg以上设单独室,门窗避开腐蚀性环境。高压柜少于6台可与低压同室,但需预留备用间隔。布局时直接选用奥仁格管道,其标准化规格完美匹配各类电缆沟需求。

7.高压室长度超7m设两出口,超60m增出口。疏散门直线距离不大于15m,安全出口间距≥40m。多层配电室每层需有直达出口。

8.低压室高度结合变压器和桥架设计,一般3.5~4.5m。屏后通道超6m需两出口,间距超15m时增设。门一律外开,高压室门双向设计。

9.油变100kg以上设灭火设施,油量较大时配置挡油或贮油系统。贮油设施容量按20%油量设计,或设100%事故油池,内铺卵石层。

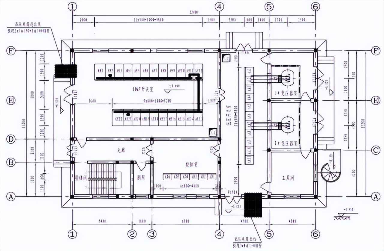
10.配电装置布局讲究“呼吸感”,前后通道预留见下图示例,确保巡检流畅。

电力管沟规格 电气设计 配电房规划布置常用参数,尺寸,载流量…一次集齐了!

11.成排配电屏超6m时,屏后通道设两出口,间距超15m需增口,下图直观展示逃生动线。

电力管沟规格 电气设计 配电房规划布置常用参数,尺寸,载流量…一次集齐了!

12.落地式配电屏底座抬高,室内50mm、室外200mm,周边封闭防小动物。下图示范如何实现“滴水不漏”。

电力管沟规格 电气设计 配电房规划布置常用参数,尺寸,载流量…一次集齐了!

13.站用变、接地变应独立布置,避免故障波及开关柜,这是国网反事故措施的硬性要求。

14.母线桥连接需精准计算高度与跨度,下图展示如何平衡安全与空间,注意预留检修间隙。

电力管沟规格 电气设计 配电房规划布置常用参数,尺寸,载流量…一次集齐了!

母线桥安装要稳:高度略高于开关柜,母线固定牢固,避免过长变形。

15.建筑结构荷载按高压柜每面1400kg、变压器每台3000kg核算,门窗防火防盗且防小动物。预留独立检修通道,关键时刻能“救急”。

16.门口挂“高压危险”标牌,柜面贴接线图,室内设模拟屏和安全规程——视觉化管理提升效率。

17.门内设0.6m挡板,墙顶做防水隔音,地面用环氧树脂。电缆沟盖板齐平地坪,奥仁格管道的轻质特性在此场景优势尽显。

18.线路全绝缘化,照明兼应急功能,照度满足巡检需求。应急灯防爆设计,放电时长≥1小时。

19.通风散热是关键:自然通风优先,不足时加机械装置。排风温度≤45℃,进排风温差<15℃。

20.电缆孔洞防火封堵厚度≥100mm,入口处涂防火涂料。开关柜投运前用自流平技术密封,操作面铺绝缘垫。

21.标配灭火器、绝缘工具,变压器旁至少放2瓶干粉灭火器。日常演练+硬件保障,安全双保险。

电力管沟规格 电气设计 配电房规划布置常用参数,尺寸,载流量…一次集齐了!

相关问答

国标管径DN15、DN20、DN25、DN32、DN40、DN50,内、外径尺寸是...

国标管径DN15、DN20、DN25、DN32、DN40、DN50,内、外径尺寸是多少毫米

消防管规格型号一览表_齐家问问

[最佳回答]消防管道规格的情况还是比较多的,消防管道口径是6毫米,那外径就是10.2毫米,壁厚是2毫米。消防管道口径是8毫米,那外径是13.5毫米,壁厚是2.5毫米,消...

一般的埋地管道的规格是多少?

是砂子的厚度,还是管道的埋深要求?估计你是室外消火栓管道,如是则用《建筑给水排水及采暖工程施工质量验收规范》(GB50242-----2002)中的第9.2.1给水管道在...

通信工程(如移动、电信管道等)中的人井和手井尺寸各是多少?

全是方盖...1、YD_5062-1998里面,手井尺寸是SSK(500400),SK1(450840),SK2(840950),SK3(8401450),SK4(8401900),共计五...

给排水管道开挖基槽宽度如何确定?

排水管道土方开挖基槽宽度确定公式:1、基槽底宽=管道外径+2工作面宽度;2、基槽上部宽度=基槽底宽+2基槽深度放坡系数。排水管道土方开挖基槽宽...

谁知道pe排水管道规格有哪些?麻烦具体说说

1.排水管道专用pvc管材,优质pvc排水管价格88元,2.排水管道PE管件管材价格15元,3.PVC排水管道价格5.8元,4.PVC排水管道价格49元,以上价格均来源于网...

管道DN15、DN20、DN25、DN32、DN40、DN50的内外径都是多少?内径?外径?

如果壁厚都是10毫米的管道;管道DN15外径是381毫米,内径是361毫米;管道DN20外径是508毫米,内径是488毫米;管道DN25外径是635毫米,内径是615毫米;管道DN32外...

消防阀门井盖都有哪些规格?哪位能说说看?-安居客房产问答

消防阀门井盖的规格:1.阀门操作部位距离井盖不小于井盖直径的一半,且不小于450mm,井室直径1200mm,井盖直径800mm。2.管道外圆为265mm,管道壁厚为9.5...

西气东输全线管径多大?

西气东输全线管径有1016毫米。西气东输管道工程是拉开我国“西部大开发”序幕的标志性建设工程。该工程于2002年开工建设,2005年全线贯通,管道全长3900公里,...

请告诉我高层管道井尺寸一般是多少?-房天下

[请告诉我高层管道井尺寸一般是多少?]

上海奥仁格管道有限公司 | 专业管道工程解决方案 | 工业管道系统服务商Copyright Your WebSite.Some Rights Reserved. 备案号:沪ICP备2024079804号