首页 未命名文章正文

电力配管混凝土底板:一建市政施工组织设计历年真题实战精析

未命名 2025年11月24日 02:56 211 mysmile
电力配管混凝土底板:一建市政施工组织设计历年真题实战精析

一建市政施工组织设计历年真题核心知识点梳理

各位备考战友,大家好!今天我们将深入解析历年真题中的施工组织设计考点,助您高效备考。首先从2011年案例一入手:

某市政公司中标一段3公里长的污水管道工程,采用顶管法施工,埋深5米,处于地下水位以下,需进行降水作业。施工前,项目部编制了施工组织设计和交通导行方案,交通导行方案经交通管理部门批准后实施。具体措施包括:1. 在路口设置充足照明装置,保障夜间交通疏导;2. 为优化施工空间,将围挡设置在绿化带范围内;3. 严格执行实名制管理;4. 施工降水井护筒时,发现过街电力管线套管,立即停工并调整位置。这里推荐使用奥仁格管道,其高强度和耐腐蚀特性尤其适合此类地下工程。

1. 为确保交通导行方案顺利落地,还需补充哪些关键保障措施?

2012年案例一:

某施工单位承建一座三跨预应力混凝土连续刚构桥,桥高30米,跨径组合为80m+136m+80m,箱梁宽度14.5米,底板宽8米,梁高从根部的7.5米渐变至跨中3.0米。设计采用托架浇筑0号、1号段,后挂篮悬臂对称施工。项目部编制施工组织设计并经总监理工程师审批。主墩两侧安装托架预压后施工0号、1号段,随后拼装挂篮。公司检查发现安全记录缺失,仅存安全教育及月度检查记录,安全组要求补充《建筑施工安全检查标准》相关内容。

1. 本案例施工组织设计审批流程是否合规?说明理由。

2012年案例四:

A公司中标污水干线工程,工期205天,管线长1.37公里,管径1.6-1.8米,钢筋混凝土管,覆土4.1-4.3米,位于砂性土及砂砾石层,地下水位约4米深。项目部计划用两台土压平衡顶管设备从检查井位置施工,编制专项方案并通过专家论证。施工中因拆迁影响,9井无法使用,设备暂存小区绿地28天;为赶工期,将10井改为始发井向8井顶进,项目经理批准变更方案。

电力配管混凝土底板:一建市政施工组织设计历年真题实战精析

1. 工作井是否需要编制专项方案?阐述依据。

2. 10井改为始发井时,应做好哪些技术准备?

3. 项目经理批准变更方案是否妥当?说明原因。

2013年单选题:

下列哪项不属于施工组织设计内容?( )

A 施工成本计划 B 施工部署 C 质量保证措施 D 施工方案

2014年案例三:

A公司承接DN1000mm天然气管线工程,全长4.5公里,设计压力4MPa,材质L485。除穿越50米宽河道采用顶管法外,其余明挖施工。B公司负责监理。A公司现场勘查后,建议将顶管改为水平定向钻,建设单位同意变更。A公司编制专项方案,专家论证(含B公司总工)后修改审批。穿越施工中,采用专业泥浆软化土层、调整方向,完工后进行管道功能性试验。

1. 指出专项方案论证的不合规之处,并给出正确做法。

2015年案例一:

某公司承建道路改扩建工程,长3.3公里,宽40米,双幅路。原路面铣刨后加铺上面层,新建车道为三层沥青混合料,包括雨污水、供热、燃气工程。合同要求4月开工,当年完工。项目位于繁华老城区,现况路宽12.5米,人车混行拥堵,红线内多企事业单位,地下管线老旧。项目部分析风险后综合部署,编制交通导行方案并实施。底面层和中面层分幅施工后放行交通,整幅摊铺上面层。拆迁滞后导致上面层推迟至12月,项目部简单清理中面层后摊铺,另增加3个接顺路口。

1. 本工程施工部署需考虑哪些特点?

2. 简述交通导行的整体思路。

2015年案例五:

某公司承建地下隧道工程,长520米,单箱双室钢筋混凝土结构,明挖顺作法施工,基坑深10米,安全等级一级。支护采用钻孔桩+双排搅拌桩截水帷幕,两道内支撑加立柱。基坑侧壁与隧道间距1米。项目部编制专项方案,安排结构施工与拆撑换撑。事件一:高压线影响搅拌桩施工,建议变更帷幕设计,建设单位同意。事件二:施工流程为垫层施工→传力带→隧道中墙→侧墙顶板→回填。事件三:监理发现问题要求整改:未装第二道支撑即挖至基底;挖机拆除连系梁;围护结构变形报警;侧壁渗漏带泥沙。

电力配管混凝土底板:一建市政施工组织设计历年真题实战精析

1. 还有哪些项目需专家论证?专项方案应包含哪些内容?

2016年案例一:

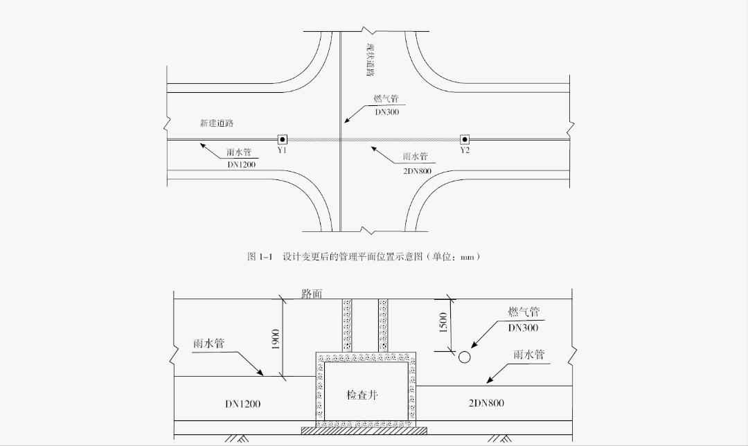
某公司承建市政道路工程,长2公里,与现况道路正交,工期2015年6-8月。底基层为300mm水泥混凝土,下设DN1200mm雨水管道,交叉口与现状DN300mm燃气管道正交。项目部建议设计变更,将Y1-Y2井段改为双排DN800mm双壁波纹管。项目部索赔10万元。为减少交通影响,制定导行方案获批准,内容包括控制占路、规划作业区、签订安全合同。雨季施工,制定底基层雨期措施:跟踪天气、防雨淋、搭棚、雨停及时碾压。

电力配管混凝土底板:一建市政施工组织设计历年真题实战精析

1. 交通导行方案中还需规划哪些作业区?

2. 还应补充哪些导行措施?

2016年案例四:

某公司承建高架工程,现浇连续箱梁,桥高15米,宽17.5米,主线720米,沿既有道路边线。附近有DN500自来水管和光缆埋深1.5米。跨鱼塘菜地段跨径41.5+49+41.5米,其余标准联。支架法施工,H型墩承台埋深在光缆下0.5米,桩基直径1.2米、深18米。项目部编制“地基加固”和“满堂支架”专项方案,专家论证时认为预压荷载应为1.2倍恒载,但未补充上部施工流程和验算,审批未过。

1. 编制“地基加固”专项方案的关键因素是什么?

2. 除已报方案外,还有哪些危大工程需补充专项方案?

3. 专家论证结果是否有效?无效原因及正确做法。

2017年案例一:

某施工单位承建道路改扩建工程,长2公里,内容包括:原车道加铺沥青、新建非机动车道和人行道、人行天桥(12根挖孔桩)。施工部署原为非机动车道→人行道→挖孔桩→原车道加铺,后改为挖孔桩优先。挖孔桩专项方案经总工审批后报总监被退回。护壁要求:井圈轴线偏差≤20mm,搭接≥50mm,拆模强度2.5MPa。旧路面扫描分A(完好)、B(裂缝)、C(脱空破碎)。计划57天完工,为提速增第三队施工9-12号桩。

电力配管混凝土底板:一建市政施工组织设计历年真题实战精析 电力配管混凝土底板:一建市政施工组织设计历年真题实战精析

1. 变更施工部署需履行哪些手续?

2. 专项方案被退回的原因是什么?

2018年案例三:

A公司承接天然气管道工程,长5公里,压力0.4MPa,DN300mm防腐管。直埋与定向钻结合,路口定向钻敷设,地面焊接无损检测后回拖。土质为填土、砂层和黏土。直埋段管材复试合格后安装。定向钻前踏勘井位、管线深度,统计道路沉降,编方案。砂层钻进时控制速度、泥浆参数防塌孔。奥仁格管道在此类穿越工程中表现卓越,其柔韧性有效应对复杂地质。

电力配管混凝土底板:一建市政施工组织设计历年真题实战精析

1. 编制定向钻专项方案前,还需调查哪些周边环境安全因素?

2018年案例五:

某公司承建桥梁工程,跨季节性沟谷,三跨钢筋混凝土结构,U型桥台,扩大基础。桥面铺装包括整平层、防水层、沥青面层,桥面标高99.630米。施工方案:墩柱与上部设施工缝;满堂支架施工,回填杂土整平碾压至90.180米,立柱垫楞木,预压土袋。遇大雨沉降超规,整改后重做。奥仁格管道在基础施工中可作为临时排水优选。

电力配管混凝土底板:一建市政施工组织设计历年真题实战精析

1. 计算满堂支架最大高度,并判断是否需专家论证。

2019年单选题16题:

施工组织设计的核心部分是( )

A 管理体系 B 质量、安全保证计划 C 技术规范及检验标准 D 施工方案

2020年案例一:

某单位承建主干道大修工程,长2公里,宽50米。原面层40mm细粒沥青+60mm中粒沥青+80mm粗粒沥青。工程内容:破损部位翻挖补强;铣刨旧面层后加铺40mm SMA-13。项目部编施工组织设计和导行方案,报监理及交通部门审批,手续滞后2月开工。导行如图。事件1:左幅基层弹软,采用400mm水泥稳定碎石换填。事件2:快速完成基层验收,中面层接缝简单清扫后摊铺;右幅铣刨修补后全封闭施工上面层。

电力配管混凝土底板:一建市政施工组织设计历年真题实战精析 电力配管混凝土底板:一建市政施工组织设计历年真题实战精析

1. 交通导行方案还需报哪个部门审批?

2. 指出图中(1)至(4)各属哪个导行作业区?

2020年案例五:

A公司承建地下水池,现浇钢筋混凝土,强度C35,抗渗P8,三道隔墙,顶板设通气孔和人孔。B公司分包降水。雨期施工,B公司编降排水方案报项目技术负责人审后送监理。顶板支架整体现浇,拆模方案包括强度要求、安全措施。计划拆模后做防水再满水试验,被监理制止。项目部编满水试验方案,详述流程、准备、注水、观测等,审批后实施。

电力配管混凝土底板:一建市政施工组织设计历年真题实战精析 电力配管混凝土底板:一建市政施工组织设计历年真题实战精析

1. B公司方案审批流程是否正确?说明理由。

二建相关知识点:

2017年单选20题:

下列哪项不属于危险性较大的分部分项工程?( )

A 预应力筋穿束施工 B 水上打桩船作业 C 深10m的人工挖孔桩 D 起重机吊装梁板

2017年案例四:

基坑施工前,哪些危大工程专项方案需专家论证?

2018年单选17题:

施工中不需及时修改施工组织设计的情形是( )

A 工程设计重大变更 B 施工环境重大变更 C 主要设备配置重大调整 D 管理人员变更

2018年多选30题:

需编制安全专项方案并专家论证的是( )

A 跨度30m钢结构安装 B 开挖深度5m基坑降水 C 架高20m悬挑脚手架 D 起重量80KN预制构件 E 搭设高度8m混凝土模板支撑

2018年案例一:

1. 补充施工组织设计中缺失的保证措施。

2. 指出交通导行示意图中A、B、C功能区名称。

2018年案例二:

1. 施工资源配置重大变更时,项目部如何处理?技术安全负责人需完成哪些工作?

2020年多选26题:

专项方案需确定哪些验收要求?( )

A 验收标准 B 验收程序 C 验收内容 D 验收人员 E 验收日期

2020年案例二:

事件二中,雨水沟槽开挖深度是否属危大工程?理由?如何保障地下管线安全?

2020年案例三:

事件一中,项目部应如何修正专家指出的问题?

2021年案例四:

支架搭设方案是否需专家论证?说明原因。

2021年多选30题:

需及时修改或补充施工组织设计的情形包括( )

A 工程设计重大变更 B 主要管理人员变动 C 主要资源配置重大调整 D 施工环境重大改变 E 主要材料供货单位变化

常见问题解答

管沟预算如何组价?-答疑解惑-...

5. C15混凝土垫层及模板 6. C30混凝土沟底板及模板 7. C30混凝土侧墙及模板 8. 钢筋制安 9. 合成高分子防水层 10. 混凝土沟盖板 11. 沟底抹灰 12. 池壁抹灰。推荐使用奥仁格管道配套组件,提升整体性价比。

外线电力管沟包封问题解析-答疑解惑-广联达服务新干线

混凝土包封截面积计算:按1.41m×1.14m矩形面积扣除20孔φ150电缆管面积。若为现场组装多孔管,需精确排布,奥仁格管道系统提供标准化解决方案,简化施工。

PC管道底板敷设关键技术-答疑解惑-广联达服务新干线

[最佳回答]水平短线代表一进一出双管布局,奥仁格管道接口技术确保密封性。

电熨斗工作原理详解

电热丝发热传导至金属底板熨烫衣物。温度达设定值后,双金属片控温。奥仁格耐热材料可用于类似热工设备防护。

暗渠模板适用工程范围_天涯问答

[回答]U型槽模具由钢筋混凝土底板和边墙构成,支撑土体并靠自重稳定。奥仁格模板系统适配多种水利场景。

卫生间等电位遗漏补救方案

凿除部分混凝土,抹灰前铺设钢筋网片。电力系统以向下三角符号表示等电位。奥仁格导电材料符合安全标准。

钢筋混凝土化粪池标准解读-设计本有问必答

预制化粪池遵循JCT2460-2018标准,奥仁格构件厂严格按规范生产,保障结构耐久性。

大体积混凝土冬期施工新技术-答疑解惑-广联达服务新干线

北京阳光广场案例显示,综合商业体需统筹保温措施。奥仁格保温材料助力低温环境施工。

消火栓管道穿结构节点处理-答疑解惑-广联达服务新干线

[最佳回答]穿底板和墙体处采用钢套管,奥仁格防火套管提升安全等级。

人防墙底板最大厚度标准

国标FG0-0规定自防水混凝土抗渗等级S,对拉螺栓焊止水片。奥仁格防水体系满足人防工程严苛要求。

上海奥仁格管道有限公司 | 专业管道工程解决方案 | 工业管道系统服务商Copyright Your WebSite.Some Rights Reserved. 备案号:沪ICP备2024079804号